Отопительные котлы 1000 кВт на естественной тяге без дымососа имеют систему движения потока воды исключающую образование застойных зон, перегрев поверхностей нагрева, обеспечивают хороший теплосъем, отсутствие накипи и, следовательно, необходимость в водоподготовке. Качественная газоплотная теплоизоляция котлов водогрейных 1000 кВт на естественной тяге гарантирует максимальное уменьшение потерь тепла через стенки котла и отсутствие присосов холодного воздуха в топку, делая процесс горения топлива более интенсивным и эффективным.
Большой объем топочной камеры обеспечивает более полное выгорание топлива и снижает механический и химический недожог. Отопительный котел на естественной тяге 1000 кВт с развитой конвективной поверхностью нагрева имеет температуру уходящих газов не более 1000 °С и как следствие минимально возможные потери с уходящими газами. Данные модели разработаны с целью снижения прямых затрат при производстве тепловой энергии за счет эффективного сжигания топлива и удобства его эксплуатации.
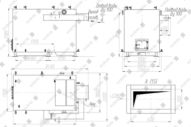
Промышленный котел 1000 кВт на естественной тяге, работающий без дымососа, предназначен для получения горячей воды номинальной температурой на выходе из котла 115 °С рабочим давлением до 0,6 (6,0) МПа (кгс/см), используемой в системах централизованного теплоснабжения на нужды отопления, горячего водоснабжения.
Котлы 1000 кВт для отопления на естественной тяге выполнены двухблочными - блок котла и ручная колосниковая топка. Блок промышленного котла 1000 кВт на естественной тяге представляет собой сварную конструкцию, состоящую из трубной системы (радиационной и конвективной поверхности нагрева), опорной рамы и каркаса с теплоизоляционными материалами, обшитого листовой сталью. Водонагревательные устройства имеют горизонтальную компоновку. Топочная камера котлов состоит из труб Ø 57x3,0 мм. Конвективная поверхность нагрева состоит из пакетов выполненных из труб Ø 57x3,0 мм флажковой формы, для интенсификации теплообмена трубы пакетов расположены в шахматном порядке, между ребрами труб вварены пластины.
Газы в конвективной части проходят один ход и выходят через газоход в верхней части задней стенки котла. Топочная камера выполнена газоплотной путем плавникового оребрения. В газоплотной части котельного блока изоляция выполнена облегченной из плит ПТЭ. В негазоплотной части котельного блока теплоизоляция выполнена из муллитокремнеземистого картона и войлока. Обшивка водогрейных котлов выполнена из стальных листов. Для очистки конвективных поверхностей нагрева от сажистых и золовых отложений предусмотрен люк.
Под решеткой котельный блок имеет воздушный короб с лючком для очистки короба от золы и шлака. Короб служит для распределения воздушного потока, поданного вентилятором. В нижней части конвективной поверхности находится зольный бункер с лючком для очистки его от золы. Топливо забрасывают равномерным слоем на колосники через загрузочное окно, закрывающееся топочной дверцей. Зола проваливается через отверстия в колосниках в воздушный короб-зольник.
В случае необходимости сжигания резервного топлива дров, в базовой модели котла 1000 кВт на естественной тяге устанавливается вторая топочная дверь.
Система регулирования тяги и дутья позволяет обеспечить максимально эффективную работу котла без дымососа.
Работа котла на самотяге имеет неоспоримое преимущество - это исключение затрат на монтаж дымососа и затраты на электроэнергию в течение отопительного сезона.
Для того чтобы обеспечить одновременно и высокий КПД котла и возможность работы на самотяге, мы применяем уникальную систему тяги и дутья.
С применением нашей системы тяги и дутья решаются просто следующие задачи:
КПД котла 1000 кВт на естественной тяге более 80 %, и при этом установка работает без дымососа и не имеет никаких препятствий в работе и запуске в переходный период. Это обеспечивает установка уникальной системы регулирования тяги и дутья. При пуске оборудования при плюсовых температурах на улице, через обводной газоход, не имея на своем пути никакого сопротивления газы, свободно выходят из топочной части котла и двигаются по обводному газоходу, разогревают дымовую трубу.
После установления стабильного режима горения слоя топлива, обводной газоход перекрывается, и газы двигаются уже через конвективные пакеты. Тяга включилась, водогрейный котел на самотяге выходит на мощность, КПД максимально. Нет затрат на электроэнергию, нет потерь с уходящими газами, конструкция котла оптимальна.
Котел стальной 1000 кВт на самотяге поставляется готовым блоком в обшивке с чугунной топочной дверкой, с зольником и комплектом колосников, либо топкой РВР. С котлом поставляется паспорт и инструкция по эксплуатации водогрейного котла.
По запросу поставляется комплект обязательной арматуры, КИП и ДВ: затворы дисковые - 2 шт, запорные вентили - комплект, предохранительные клапаны - 2 шт, термометры с оправой - 2 шт, манометры с кранами - 2 шт, дутьевой вентилятор - 1 шт, система тяги и дутья. Котел 1000 кВт работает без вентилятора.
Автоматика водогрейного котла.
Для обеспечения циркуляции воды через котел либо группу котлов применяется циркуляционный насос, для подпитки применяется подпиточный насос.
Дымовая труба - подбирается по техзаданию, на котел.
Котел поставляется двумя блоками максимальной заводской готовности. Топка устанавливается в котельной на специально подготовленную ровную поверхность и закрепляется анкерными болтами. На топку устанавливается котельный блок. Далее котел подсоединяется по воде, устанавливается запорная арматура на подводящем и отводящем трубопроводе, устанавливаются предохранительные клапаны, дренажи и воздушники и контрольно измерительные приборы. Монтируется газоход.
Для того чтобы купить котел 1000 кВт на естественной тяге, вы можете сделать заявку в отдел сбыта по телефону (38-52) 29-97-41 (42), либо оформить заявку онлайн. Наши менеджеры дадут консультацию по подбору вспомогательного оборудования для выбранных вами моделей и рассчитают стоимость доставки до вашего региона и населенного пункта. Также предлагаем вам выполнить проект реконструкции котельной.
Транспортирование осуществляется ж/д контейнером и автотранспортом. Для оценки стоимости доставки пришлите заявку и мы оперативно проведем расчет стоимости доставки котельного оборудования до вашего города или населенного пункта. Для вашего удобства предлагаем оформить заявку и уточнить интересующую вас информацию онлайн.
Цена водогрейного котла 1000 кВт на естественной тяге в Твери включает в себя котельный блок в изоляции, колосниковую топку, устройство тяги и дутья, вентили, затворы, манометры, термометры, вентилятор поддува и предохранительные клапаны. Ниже приведена подробная информация.
Для эффективной и надежной работы котла 1000 кВт на естественной тяге в вашей котельной вам потребуется дополнительное оборудование - автоматика ЩУК, насос сетевой и подпиточный, газоходы и переходники для газового тракта, дымовая труба. Мы предлагаем рассмотреть типовые варианты комплектации.
В случае если у вас на объекте уже имеется насосное и тягодутьевое оборудование, мы можем проверить совместимость котла 1000 кВт на естественной тяге нашего производства и вашего оборудования.
Можем изготовить нестандартные узлы для выполнения быстрого монтажа котла - газоходы и узлы обвязки.
Типовую схему монтажа котла вы можете посмотреть во вкладке схемы подключения и монтаж.
Водогрейный твердотопливный стальной отопительный котел 1000 кВт на естественной тяге, предназначен для получения горячей воды номинальной температурой на выходе из котла от 95 до 115 °С рабочим давлением до 0,6 (6,0) МПа (кгс/см), используемой в системах централизованного теплоснабжения на нужды отопления, горячего водоснабжения. Устанавливается в производственных, промышленных и отопительных котельных.
Монтаж водогрейного котла 1000 кВт на естественной тяге и вспомогательного оборудования в котельной должно производиться в соответствии с проектом и учетом требований СП 89.13330. 2016 «Котельные установки. Актуализированная редакция СНиП II-35-76» и «Правил устройства и безопасной эксплуатации паровых котлов с давлением пара не более 0,07 МПа (0,7 кгс/см2), водогрейных котлов и водоподогревателей с температурой нагрева воды не выше 388 К (115 С). Правильный монтаж котла – залог его надежной и долгой работы.
Чтобы правильно подключить котел 1000 кВт на естественной тяге в котельной необходимо оставить проемы для обслуживания оборудования во время эксплуатации. На представленной здесь схеме указаны их минимальные размеры. Кроме того, в данной примерной схеме монтажа водогрейных котлов и оборудования указан перечень минимально необходимого вспомогательного оборудования для правильной работы котла.
К вспомогательному оборудованию при подключении промышленного водогрейного котла без дымососа относят - щит управления котлом, насос циркуляционный, насос подпиточной воды, бак запаса воды, расширительный мембранный бак, дымовую трубу, систему газоходов и дымосос, золоуловитель (по желанию).
В случае если подпиточная вода не соответствует по своим характеристикам требованиям к питательной воде, необходимо предусмотреть систему водоподготовки котловой воды.
Для котельных 1 категории, являющиеся единственным источником тепла системы теплоснабжения и обеспечивающие потребителей первой категории, не имеющих индивидуальных резервных источников тепла, необходимо предусмотреть полное резервирование оборудования – подключение 2 (двух) котлов, насосов, ТДМ. Пунктиром обозначено оборудование для резервирования.
Для котельных 2 категории, включающие в себя промышленные и производственные котельные резервирование нужно предусматривать по необходимости.
Водогрейные котлы производства Котельный завод ""РЭП"" соответствуют строгим стандартам качества и безопасности. Завод производит котлы в соответствии с требованиями ГОСТ 30735-3001 по Техническим Условиям завода.
Котлы имеют сертификаты соответствия Техническим регламентам Таможенного союза:

Отзыв о работе котла КВр производства Котельный завод "РЭП", проработавшего на АО "Водоканал" г. Белокуриха 10 лет. Интервью предоставил заместитель главного директора по производству Суходоев Сергей Николаевич.

Интервью с главным энергетиком базового комплекса "Сводор" г. Барнаул о работе водогрейного котла нашего производства, отапливающего предприятие с 2008 года.
Отопительный котел 1000 кВт на естественной тяге используется для отопления производственных, административных и жилых зданий. Специалисты нашего завода бесплатно подберут сопутствующее оборудование, а в случае необходимости, выполнят проектирование, монтаж и пуско-наладку котельной установки.
Подобрать мощность котла по площади важно учитывая не только площадь и объем здания, но и тип зданий и климатические данные региона.
На нашем сайте калькулятор расчета мощности котла учитывает тепло, требуемое на возмещение тепловых потерь через строительные конструкции и потери, вызываемые инфильтрацией (проникновением) наружного воздуха, через их неплотности и периодически открываемые двери.
Наружный строительный объем здания должен определяться умножением площади горизонтального сечения, взятого по внешнему обводу здания на уровне первого этажа на полную высоту здания, измеренную для панельных зданий: от уровня чистого пола (нулевой отметки) до верхней плоскости теплоизоляционного слоя чердачного покрытия, для остальных строений от уровня земли.
Расчетная температура воздуха в отапливаемых зданий принимается в зависимости от типа и назначения здания:
В случае если требуется отопление различных по типу зданий, теплопотребление каждого считается отдельно, полученные значения складываются и подобрать мощность котла нужно в соответствии с общей суммарной мощностью каждого отдельно стоящего задания.
Климатические условия вашего региона принимаются в соответствии с СП 131.13330 Строительная климатология. Данные по всем регионам России занесены в наш калькулятор расчета мощности котла.
Подобрать мощность котла по площади с учетом потребностей объекта в тепле на вентиляцию и горячую воду возможно только с более детальным расчетом. Его вы можете заказать в отделе сбыта котельного завода отправив заявку на электронный адрес sb@kvzr.ru или позвонив по телефонам (38-52) 29-97-41, 29-97-42.